Dodaj do ulubionych Dodano do ulubionych
Wynajem

Kraków, Miodowa.

Oferta sprzedaży nakładów inwestycyjnych oraz przejęcie umowy najmu:

Lokal gastronomiczny w ścisłym centrum Krakowa przy ulicy Miodowej 28A na krakowskim Kazimierzu. Możliwość natychmiastowego przejęcia działalności w pełni przygotowanym i funkcjonującym lokalu.

Oferuję do odpłatnego przeniesienia, prawo do prowadzenia działalności gospodarczej w formie lokalu gastronomicznego, aktualnie funkcjonującego jako Domówka Cafe z możliwością prowadzenia małej gastronomii, zlokalizowanego w ścisłym centrum Krakowa, w najbardziej uczęszczanej i historycznej dzielnicy miasta. Lokalizacja tuż przy skrzyżowaniu ulic Miodowej i Brzozowej (lokal frontowy znajduje się przy głównej ulicy). Lokal prosperuje z powodzeniem od 2013roku i jest kultowym miejscem spotkań fanów gier planszowych, piw kraftowych i cocktaili. Lokal wraz z pełnym wyposażeniem, dekoracjami i największą w Krakowie kolekcją planszówek. Możliwość kontynuacji działalności pod istniejącą nazwą lub rebrandingu.

Charakterystyka lokalu:

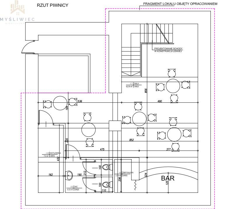
Powierzchnia sali konsumpcyjnej wraz z zapleczem na parterze: 98,4 m²

Powierzchnia sali konsumpcyjnej wraz z zapleczem na poziomie -1: 94,7 m²

Łącznie: 193,1 m2

Liczba miejsc konsumpcyjnych: około 90-100 (z możliwością uruchomienia ogródka gastronomicznego w sezonie letnim)

Stan techniczny i wyposażenie: lokal jest utrzymany w bardzo dobrym stanie technicznym. Część konsumpcyjna wyposażona została m.in. w stoły, krzesła, sofy, bar. Toalety dla klientów zlokalizowane na obu poziomach. Na wyposażeniu znajdują się również:

  • ekspres do kawy
  • lodówki
  • zamrażarki
  • zmywarka
  • meble, naczynia oraz elementy wystroju
  • klimatyzacja obejmująca cały lokal
  • sprzęt nagłaśniający
  • rzutnik z ekranem

https://maps.app.goo.gl/g9Jyq7y5t7M8CjGH8

https://www.facebook.com/domowkacafe

Możliwość kontynuacji działalności pod istniejącą nazwą lub rebrandingu.

Warunki najmu i odsprzedaży:

Odstępne 300 000 zł

Czynsz najmu: 12 500 zł netto miesięcznie + opłaty eksploatacyjne (woda 700zł, śmieci 1000zł)

Wynagrodzenie dla biura.


Treść niniejszego ogłoszenia nie stanowi oferty handlowej w rozumieniu Kodeksu Cywilnego. Oferta wysłana z programu IMO dla pośredników.

Numer oferty
132
Typ transakcji
Wynajem
Cena
12 500 zł
Powierzchnia
193,10 m2
Cena za m2
64,73 zł / m2
Piętro
parter/2
Stan lokalu
bardzo dobry
Standard wykończenia
dobry
Dodatkowe koszty
1700
Okres wynajmu
5 lat
Forma najmu
podnajem lub cesja
Powierzchnia handlowa
193,1
Typ Lokalu
gastronomiczny

Zobacz na mapie.

kontakt z agentem.

Jakub Myśliwiec.

Jakub Myśliwiec
{"ct":"rY3U2ANrODQ5Oiw\/0xTnobyDZddJ07\/bZEr7\/foF2VsOUvnNv3F5tUzO8dr9J\/WpGjHICzc+JUyFcjkLyP1j80mEMHrDkHgibUgsr4ThdN1c7Ua4Tqu0nH\/v\/w9CtZpdn2XeoB6mIfNUFTSsU\/THPUArJpRk4jquiir27mRyvfDCfN17j2\/nMd6YyUwLb+dNO7nkeOc6ZnY1rcqBvTLi9fRWtLx9u41zJPf35\/F1ODJeEwH14QuTXqyk55g\/qRInsLO+jXaJw\/RZQMINwYRmc+zJ+Yqkn0DQdsor4fZS3K6pueHDcMqmB+hTnfCbHNI0+Xsbms36EKVstvGsyds8+QpFQEjtjd13kXKkpsIU\/libVUhdTxQK3Upz3RZfiYHc59J6+udgdev1G5oxnZU2yfolhiHnM+JYuq0+WKZJu8BuVL62c+hwuu\/6ysJgm7mwSafPxo0CMBJIOnRbxTNOZzvxx4HgVv05ezGzuQk6YEKROAUqB\/l9IH9fWY\/hoQ21opdEv5iP73qOVlbRLhFC2j375HKNkvkKkcwO8RvWX31b3RruF677qLATelqkiiZCPwLc9vS2o1NHCuu5Uy30nbBwKIYCd0QdubLKI9HUonRIvKYnGFphDf8uLMQ07nzgnA8LbGo5vjuf\/zevkYXQWa2TW4i5QHj\/KDqnn\/F6YPv4v9NOu3SwkcT7nUbKJ6Ir8HDdgTZg64kF6AjJH6LtFfsCWqzaWSledkbg2kl47ttMaQBqUTGl36NZV\/qdDR2m4WNmMDx5Dqp5i7\/8F8ynx8LX0gp1IfYpkWCZxl\/BS6+4p1Mv8Dc5jonBpHNpRAFWJDTEftO3T2BxG17zPagDVz7VnAqQH9Xw+a3CGh4cX1MHGf0L3iXYTGYgUsJjvbWLe81CJQYx4sVLm7Bo1Ir1Y9\/oh7TbqFWm1uJiSFYbwgCwgdvdnuc2tVeCcVfPERek5baGIJMvPseqvfyq8lQfA0D32sWZ4fI5rV8M5Jh9BQc9WhYeM5c1vQEUDH6wYaMXL0r1NRHBjwIdlwHem1D9e7hdBFuqdQjRlfmXnImr3aaT9MrrTJBtAyOkErCyAwOQdJfeog49PKeGbxmnQFzPCg==","iv":"80489b290eed102146869ebc3449b5f3","s":"8098da6dca266776"}

Ta strona jest chroniona przez reCAPTCHA i Google Polityka prywatności i Warunki korzystania z usługi.